Quadrio
Purkyňova 2121/3 – Prague 1
| Rent: | od 29,50 EUR per sqm/month |
|---|---|
| Service charges: | 145 CZK per sqm/month |
| Parking: | 330 EUR per place/month |
| Minimum rental period: | 60 months |
(Prices are without VAT)
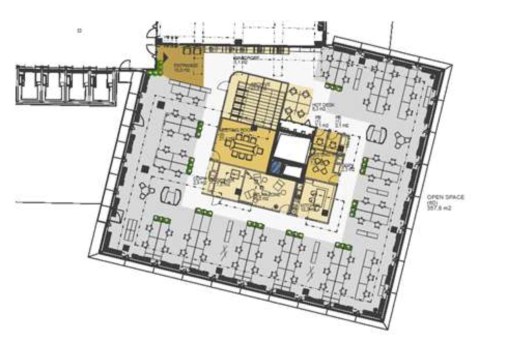
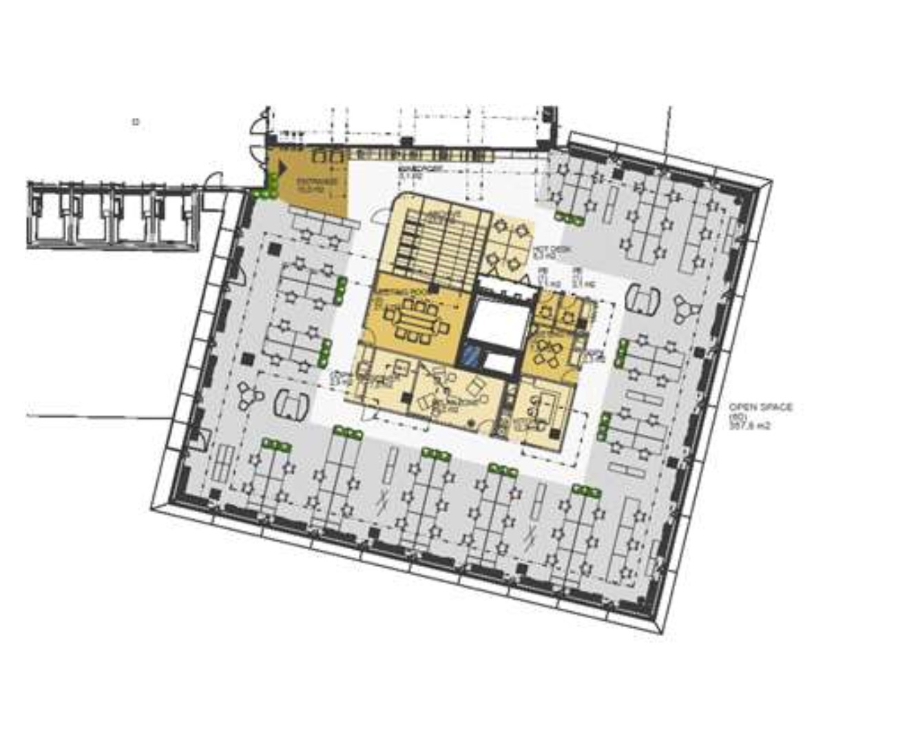
Quadrio is located in the very heart of the metropolis between Spálená and Vladislavova streets at Purkyňova 2121/3 and thanks to the B-Národní metro station right in the building, a tram junction in front of the building, underground parking and easy connection to important city roads and the nearby train station, it is one of the best transport-accessible administrative complexes in Prague 1 and the wider surroundings. Quadrio offers a total of 16,400 sqm of office space, complemented by retail space, a separate apartment building and 250 parking spaces in the underground garage. It also includes a spacious square, which will be transformed into a relaxation zone with greenery, benches and garden restaurants. The office space meets the highest technical specifications and allows for a highly flexible layout. The unique cloverleaf-shaped floor plan provides easy access to daylight in all areas. The office layout can be adapted to the requirements of the future tenant.
Free spaces
Contact






























