May House
5. května 1746/22 – Prague 4
| Rent: | od 14,90 EUR per sqm/month |
|---|---|
| Service charges: | 140 CZK per sqm/month |
| Parking: | 155 EUR per place/month |
| Deposit: | 3 monthly rents |
| Minimum rental period: | 60 months |
(Prices are without VAT)
The MAYHOUSE office project in the sought-after location of Pankrác offers a total of 7,800 sqm of modern offices, retail facilities and 69 parking spaces on 6 floors. The building's location on the main thoroughfare, easy accessibility and excellent visibility provide a representative space for small and large companies. Thanks to its location on the busiest street (5. května 1746/22) in the Czech Republic, the building allows maximum visibility of your logo placed on the building. A pleasant working environment is ensured by a suitable zoning of the areas, a high supply of daylight and a roof terrace for moments of relaxation. A fitness centre and a bike room with facilities for cyclists are available for tenants.
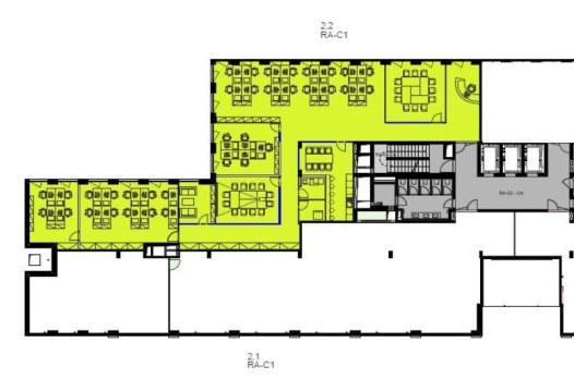
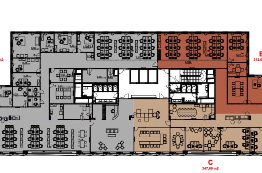
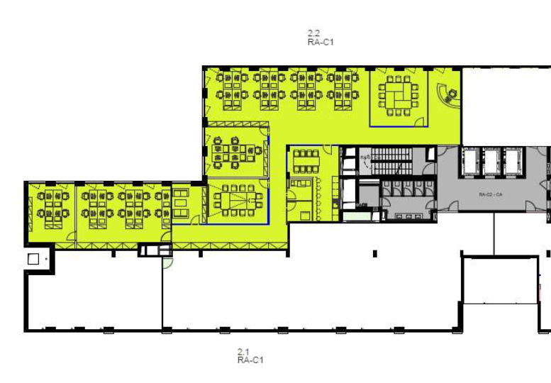
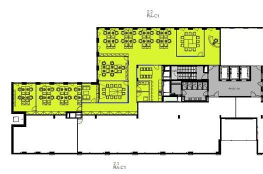
Free spaces
Contact























































































