Meteor Centre Office Park
Sokolovská 100/94 – Prague 8
| Rent: | 15 - 18,50 EUR per sqm/month |
|---|---|
| Service charges: | 155 CZK per sqm/month |
| Parking: | 150 EUR per place/month |
| Deposit: | 3 monthly rents |
| Minimum rental period: | 60 months |
(Prices are without VAT)
Meteor Centre Office Park is located in one of the most developing parts of Prague, in Prague 8 - Karlín, which is a prestigious office location close to the city centre. The building complex is located in Sokolovská Street, which provides easy transport accessibility. The city centre is 5 minutes away by public transport. A great advantage of the complex is its location directly on metro B Křižíkova, and also at the tram stop (lines 3 and 8). Meteor Centre Office Park is a complex of 3 office buildings. Building A is located directly at the Křižíkova tram stop, Building B provides its tenants with modern offices of flexible sizes in a quiet courtyard, Building C is the third phase of a successful office project. The building with an approximate size of 5,000 m2 offers not only offices but also shops and services on the ground floor and parking spaces on two underground floors. Tenants will benefit from, among other things, a bike room and facilities for cyclists, a fitness centre and shared meeting and conference rooms. Visitors will enjoy the guest parking in the courtyard.
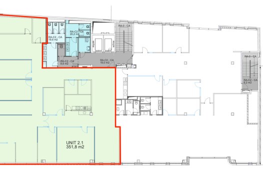
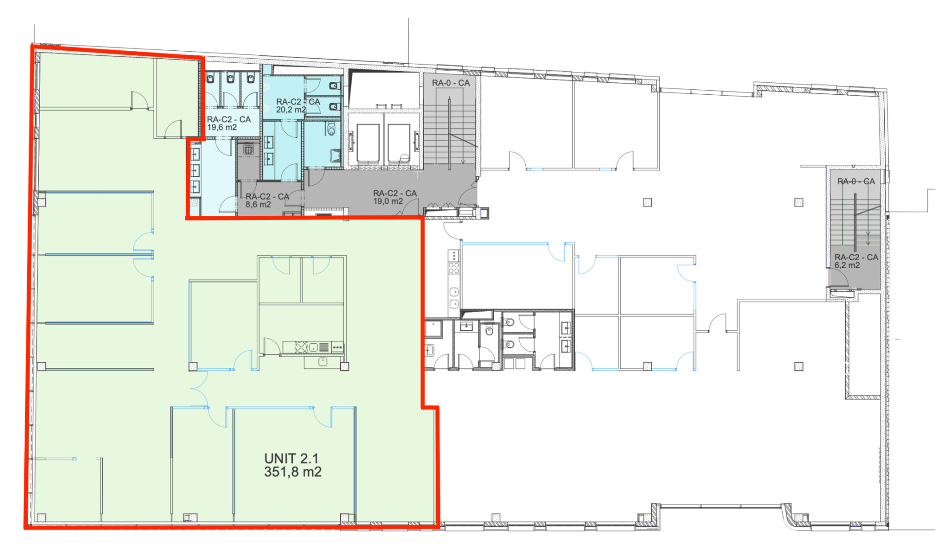
Free spaces
Contact





























































