4D Center
Kodaňská 1441/46 – Prague 10
| Rent: | od 260 CZK per sqm/month |
|---|---|
| Service charges: | 200 CZK per sqm/month |
| Parking: | 3 500 CZK per place/month |
(Prices are without VAT)
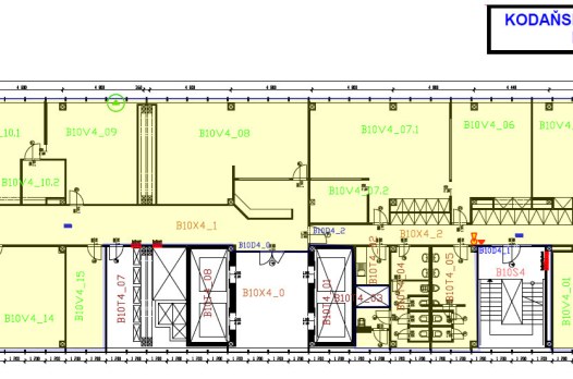
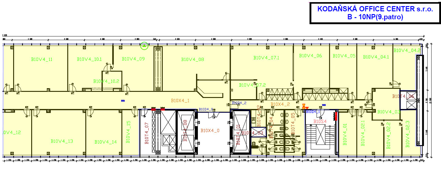
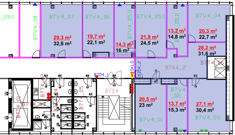
The 4D Center building is a complex of three interconnected buildings, A, B, and C, with a unique facade featuring 900 shades of color. The modern structural design of the 4D Center buildings provides high flexibility and can satisfy tenants who require up to 2,000 m² on one floor, as well as small units from 15 m². The office spaces are air-conditioned and there is a reception desk in the building lobby. The building also offers easy access to major roads, the city ring road, and the north-south highway within 5 to 10 minutes, as well as the center of Prague. Public transport is provided by the Želivského and Flóra metro stations on line A, as well as tram and bus lines, which are located in the immediate vicinity of the complex. There are also plenty of parking spaces for tenants.
Free spaces
Contact








































