Futurama Business Park
Sokolovská 685/136f – Prague 8
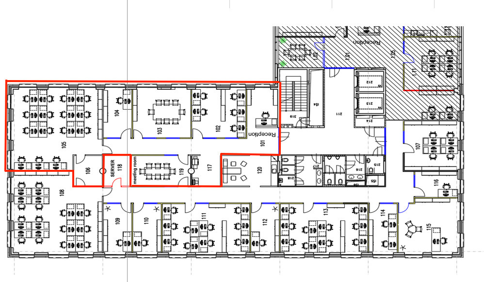
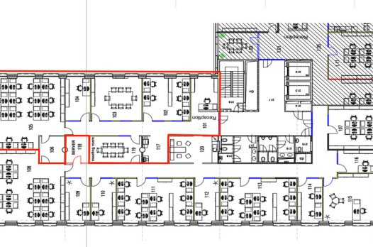
Futurama Business Park consists of six separate office buildings connected by an architecturally impressive central promenade with shallow water features. The building is surrounded by beautiful green gardens that remain beautifully green throughout the year. A typical floor of buildings A, B, D and E provides approximately 1700 m2 of gross lettable area arranged in a C-shaped double fronted façade. Flexibly configurable floor areas allow tenants to create modern and individual office layouts. Each floor can be divided into up to 6 independent office units. Offices can be arranged either as open plan or as separate rooms providing maximum space efficiency. The building is equipped with double glazed windows with an insulating layer and an insulated facade, which combined with the use of state-of-the-art air conditioning helps to keep the operating costs of the building, and therefore service charges, to a minimum. Two canteens, a lounge, a café and a bike room with lockers and showers in each building are available for tenants. Excellent public transport accessibility is provided by tram and metro stops B - Invalidovna, and by car easy connection to the Magistrala and Prague Ring Road.
Contact












