Anděl Park
Radlická 3201/14 – Prague 5
| Rent: | od 16,80 EUR per sqm/month |
|---|---|
| Service charges: | 130 CZK per sqm/month |
| Parking: | 130 EUR per place/month |
| Deposit: | 3 monthly rents |
| Minimum rental period: | 36 months |
(Prices are without VAT)
Anděl Park is a multifunctional facility built on the land of the former Tatra Kopřivnice factory, designed by Ing. arch. Václav Aulicky, the author of the Žižkov TV transmitter or the headquarters of the Czech Television on Kavčí hills.
It offers a flexible arrangement of offices suitable for large and small companies. In total, it has almost 20,000 m2 of modern, fully air-conditioned office space.
Anděl Park is located at the intersection of Radlická and Karla Engliš Streets with excellent public transport accessibility and all relevant city infrastructure. The surrounding area allows you to enjoy shopping, culture and dining virtually non-stop. In the vicinity of Anděl Park there are many restaurants, shops, hotels and other services.
The Anděl Park office building has undergone a complete modernization, offering the services of two central reception areas, complete infrastructure and leisure activities on site or within walking distance. Highlights include an ideal parking ratio of 1:63, air conditioning and opening windows, two outdoor relaxation terraces or the facilities of a roundhouse.
It is one of the few office buildings that does not charge tenants for a share of common areas. Tenants therefore only pay for the office space used.
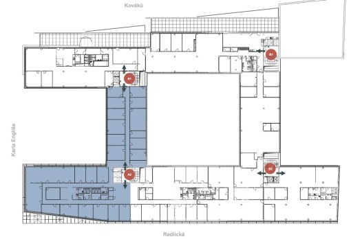
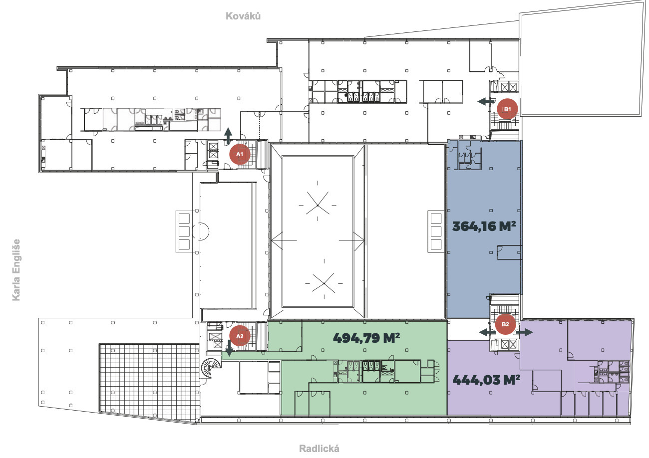
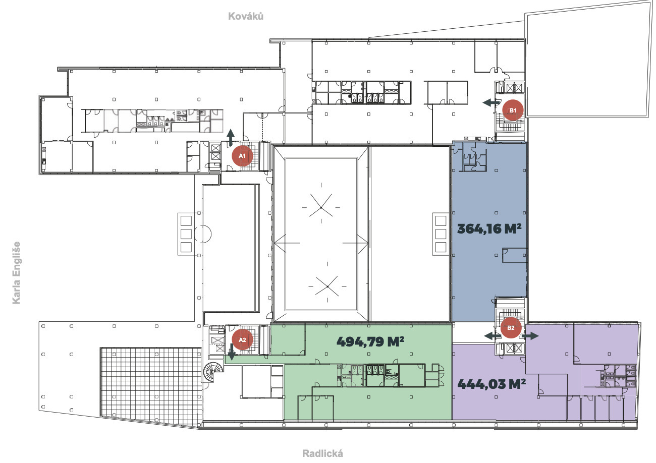
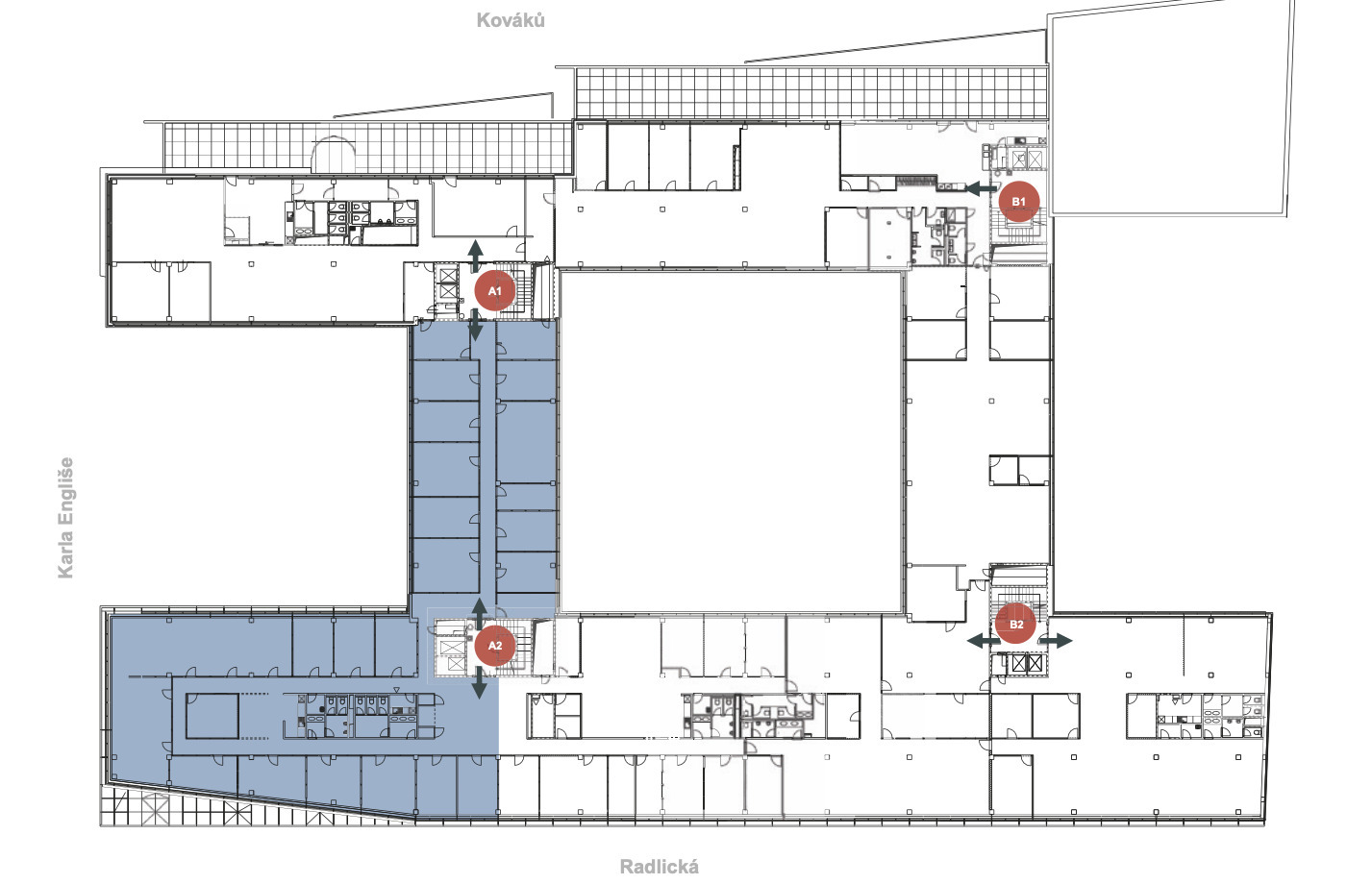
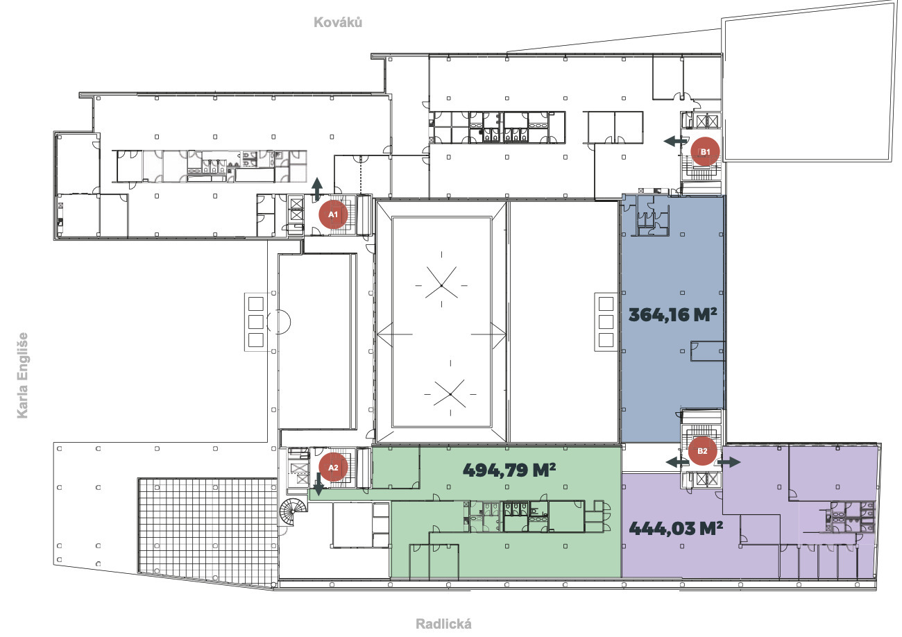
Free spaces
Contact























































































































































