Argo Alpha
Evropská 846/176a – Prague 6
| Rent: | od 15 EUR per sqm/month |
|---|---|
| Service charges: | 115 CZK per sqm/month |
| Parking: | 80 EUR per place/month |
| Rental period: | 36 - 60 months |
(Prices are without VAT)
Argo presents over 11,000m2 of state-of-the-art category A office space, allowing tenants to efficiently design their working environment on large floors of over 2,000m2. The building consists of 5 floors above ground and 2 underground floors. Within the underground floors there are over 300 parking spaces and ample storage space. Combined with advanced technology and at the same time modern and functional design, Argo becomes a home for forward thinking companies. The layout of the building's floors offers its tenants the perfect solution to suit both the need for individual office units and open plan solutions. The Argo building is located in Prague 6 - Vokovice, to the northeast of the city centre, within the pleasant residential area of Prague 6 and next to the protected nature area of Šárka. The location is highlighted by excellent visibility from Evropská Street and excellent accessibility from Václav Havel International Airport. Tram and bus stations are in front of the building. The Veleslavín metro station and the connecting bus terminal, which were opened in 2015, are about 400 m on foot from the building. Argo is also easily accessible from the Prague ring road and therefore from the D5 and D7 motorways leading to Pilsen, Chomutov and Germany. After the opening of the train connection between Veleslavín and the airport, the transport service will improve even more.
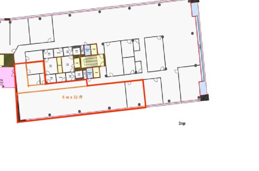
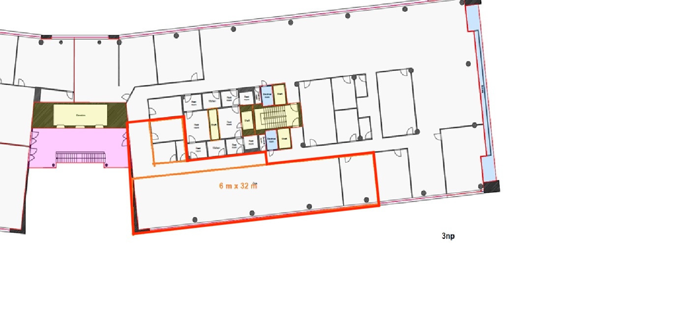
Free spaces
Contact




































