The Park
V parku – Prague 11
| Rent: | 10 - 15,75 EUR per sqm/month |
|---|---|
| Service charges: | 111 CZK per sqm/month |
| Parking: | 110 EUR per place/month |
| Storage: | 10 EUR per sqm/month |
| Deposit: | 3 monthly rents |
| Minimum rental period: | 60 months |
(Prices are without VAT)
The Park is a complex of twelve office buildings near the D1 motorway in Prague's Chodov district. It has a total leasable area of 116 000 m2. In The Park, great emphasis was placed on the design of the public space between the buildings, which have a park-like layout with plenty of greenery and water features. The Westfield Chodov shopping centre is located close to the complex and provides all civic amenities.
Public transport accessibility is ensured by the immediate distance of the metro line C - Chodov and many bus connections, to the center of the metropolis you are by metro in 15 min.
The adjacent D1 provides excellent transport accessibility in all directions both to the metropolis centre and to other traffic arteries. Underground parking spaces are provided in the area.
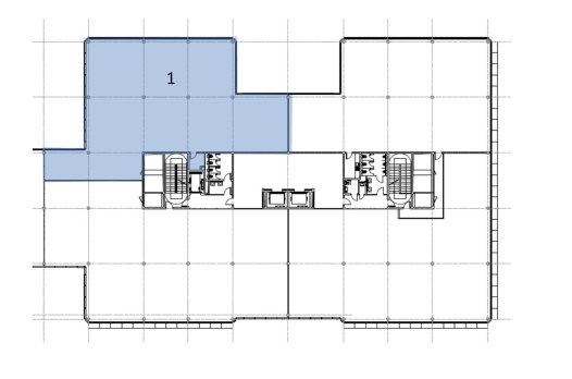
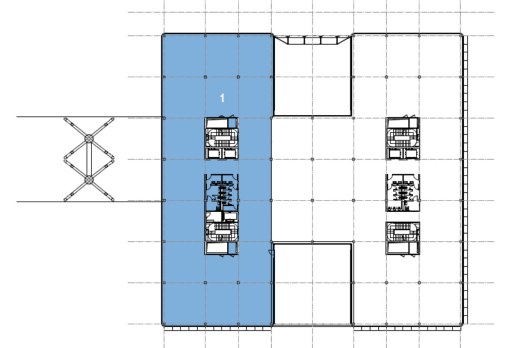
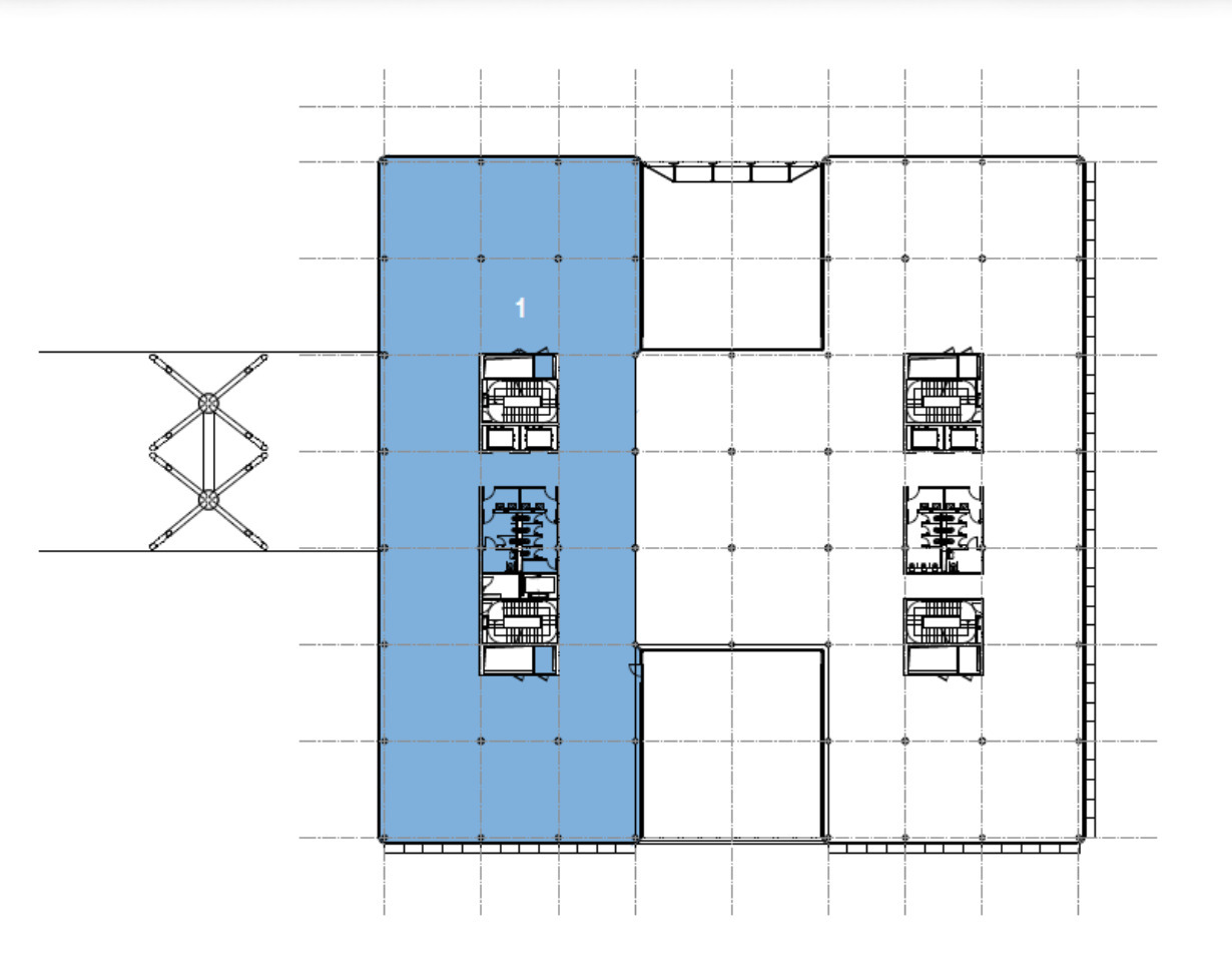
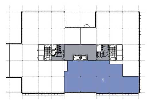
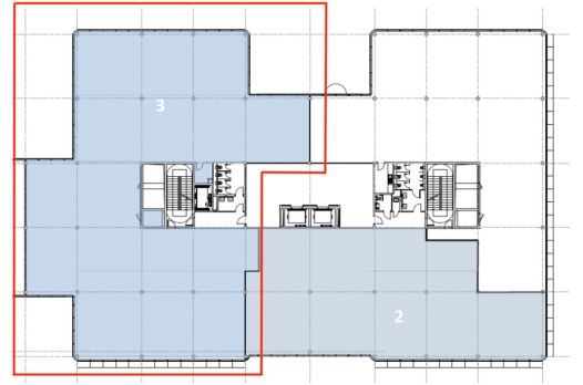
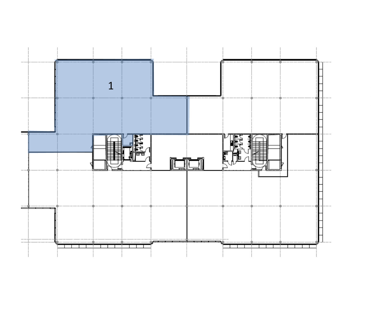
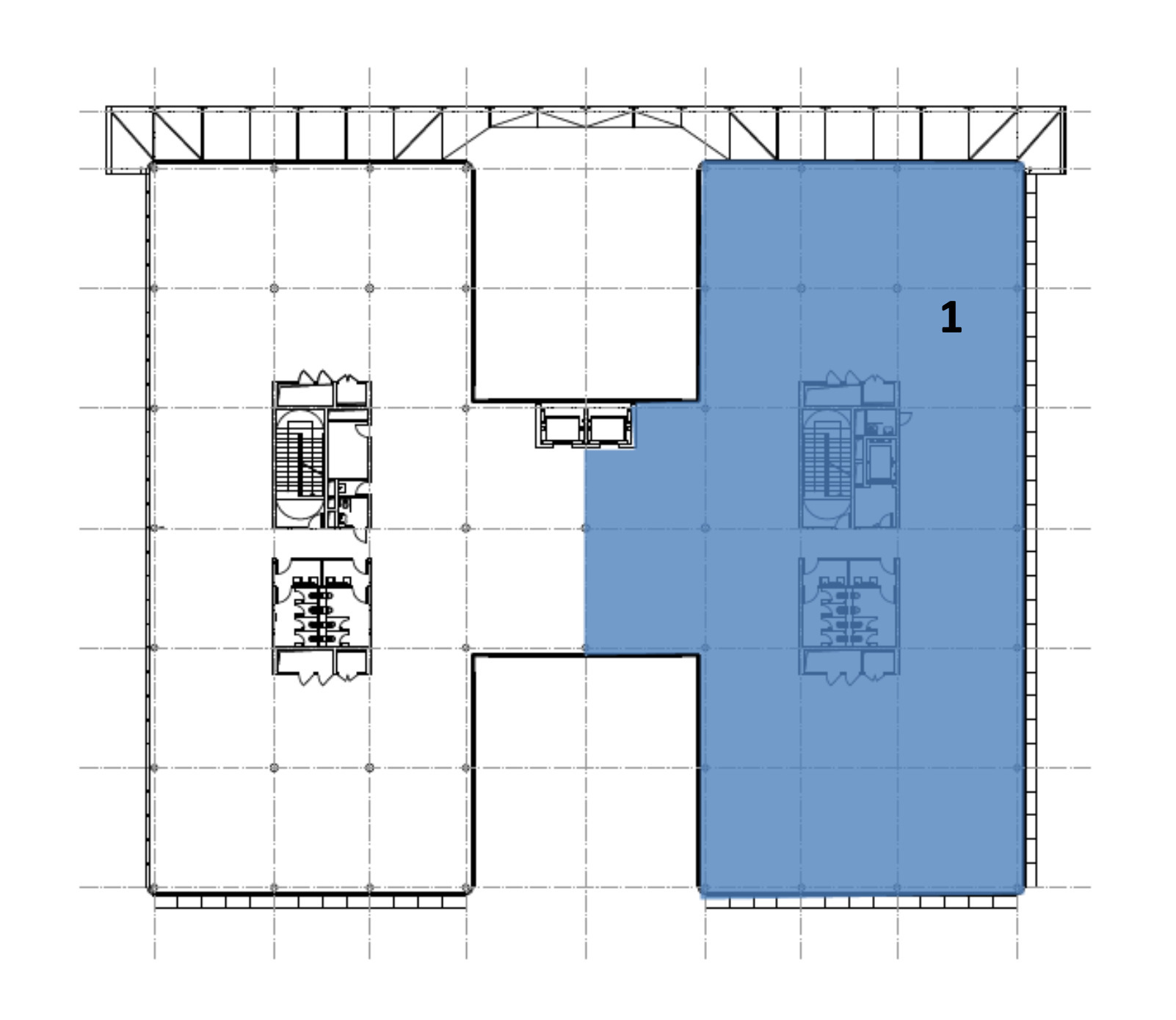
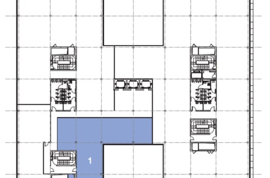
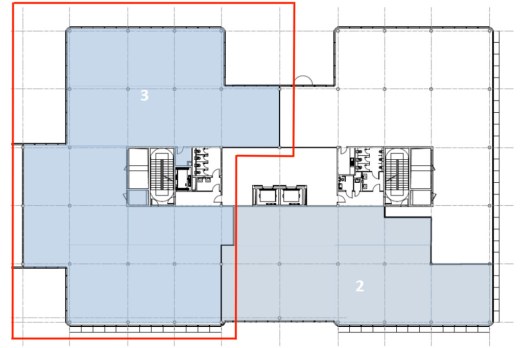
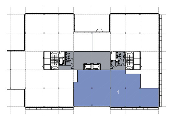
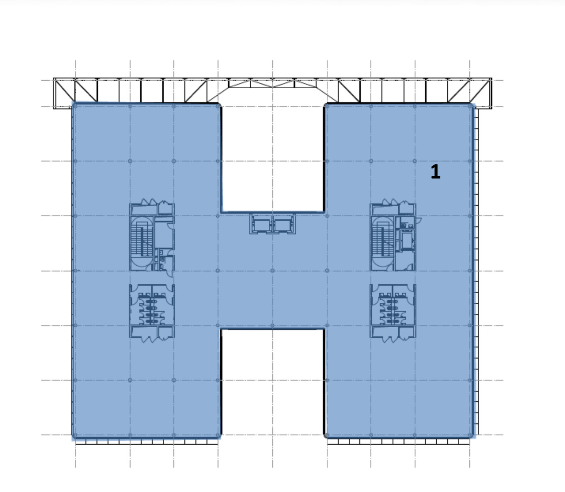
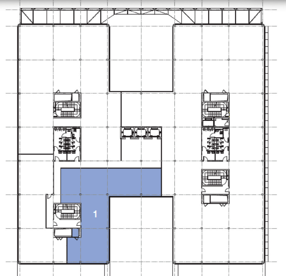
Free spaces
Contact



























































































































