Hráského 2231
Hráského 2231/25 – Prague 11
| Rent: | 12 - 290 CZK per sqm/month |
|---|---|
| Service charges: | 147 CZK per sqm/month |
| Deposit: | 3 monthly rents |
| Minimum rental period: | 36 months |
(Prices are without VAT)
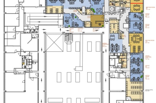
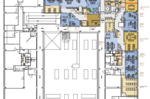
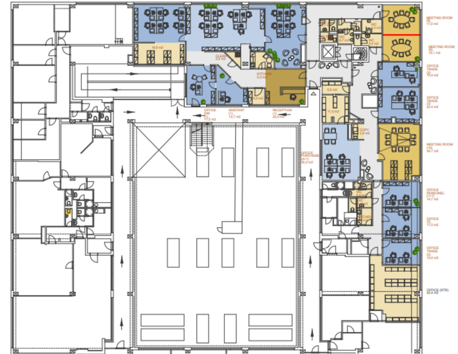
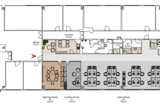
The Hráský building is located next to the Chodov shopping centre, in a location with excellent accessibility by car and metro, which is the centre of life in the southern part of Prague. There is a wide range of shops and services nearby. The building offers flexible offices with good value for money.
Cooling/Air conditioning
Elevator
Parking
Disposition changes
Opening windows
Reception
Attendance system (cards)
Flexible layout
Optical internet connection
Security 24/7
Outdoor blinds/shutters
Energy class: C - Úsporná
Free spaces
Type
Download offer
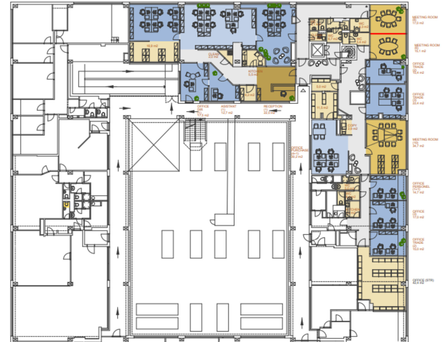
Floor plan
Size
Floor
Price per sqm
Available
Contact
































