City West C1 a C2
Laurinova 2800/4 – Prague 13
| Rent: | 12,90 - 16 EUR per sqm/month |
|---|---|
| Service charges: | 150 CZK per sqm/month |
| Parking: | 110 EUR per place/month |
| Deposit: | 3 monthly rents |
| Minimum rental period: | 60 months |
(Prices are without VAT)
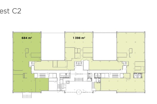
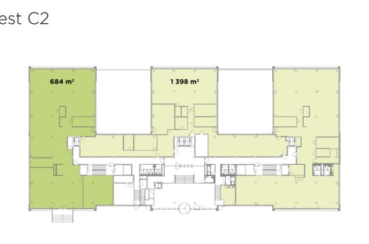
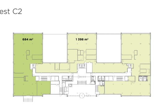
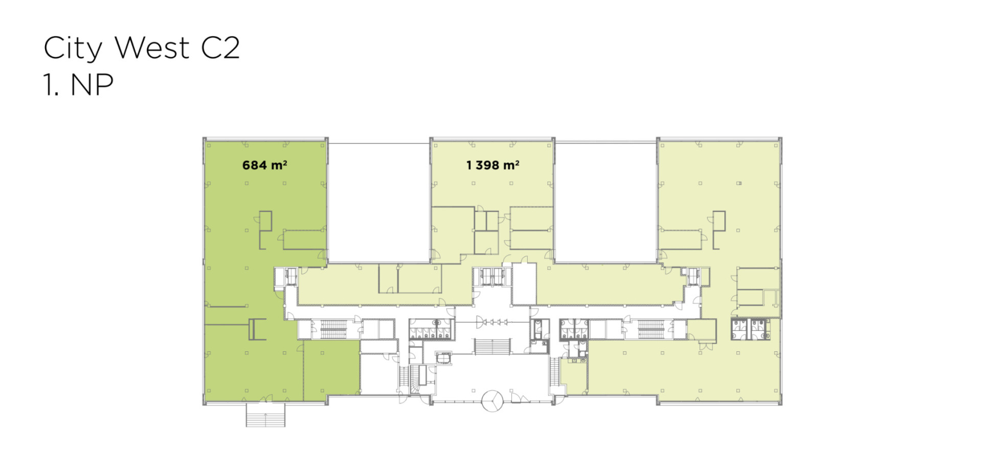
The CITY WEST C1 and C2 office project with a leasable area of 25,637 sqm consists of two office buildings and is located in a modern district in Prague's Stodůlky near the metro station of the same name. The design of both buildings is modern and freely relates to the residential development and family houses in the vicinity. The entire project is also highly functional, energy-efficient and environmentally friendly. The complex is also used by a number of retail and service operators who provide quality service for employees and residents in the areas of dining, general shopping and other daily needs. An indisputable advantage of the building is its excellent transport accessibility. The location is well accessible by public transport, it is directly at the metro station B - Stodůlky with connecting bus connections. Easy accessibility by car is provided by the D5 motorway, the Prague ring road and the airport. For employees commuting by car is provided outdoor and underground garage parking.
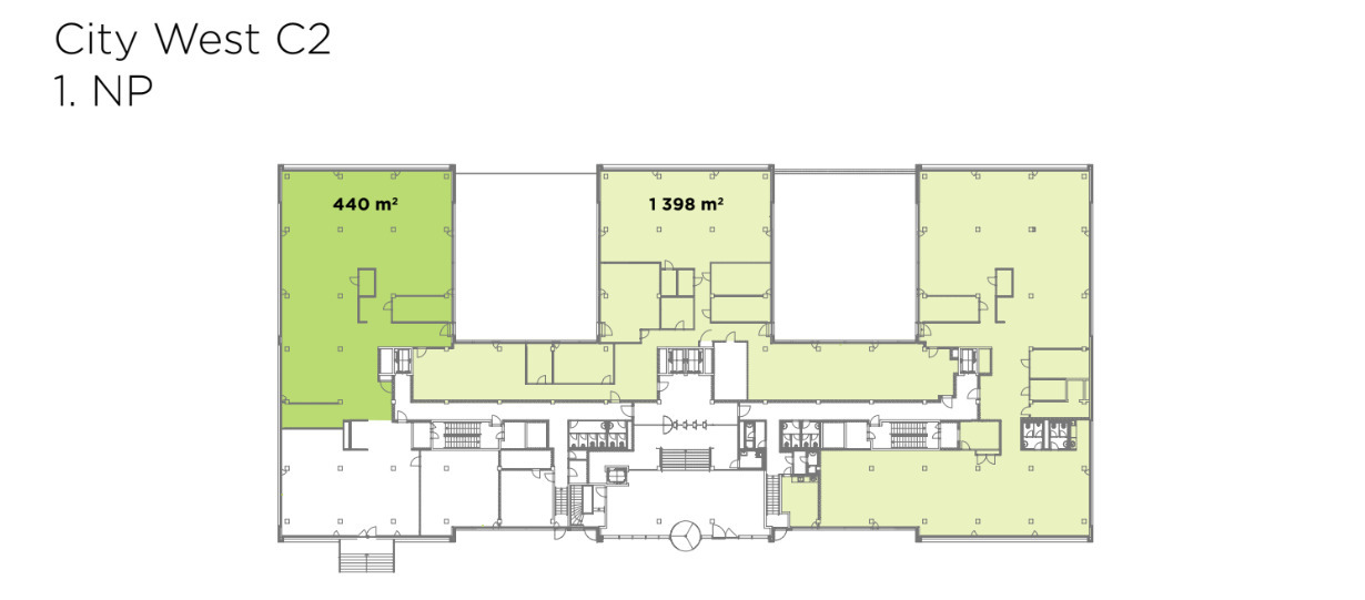
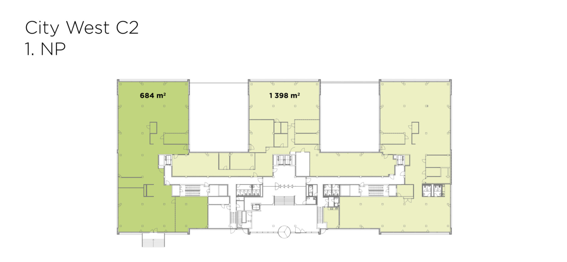
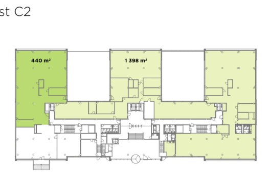
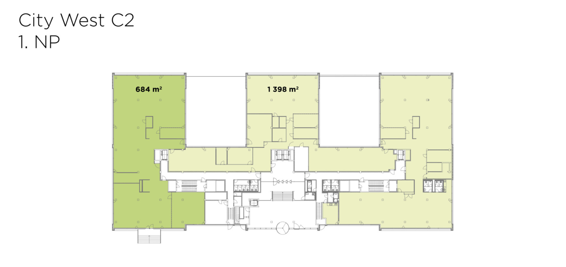
Free spaces
Contact







































































































































