Avenir Business Park
Radlická 714/113a – Prague 5
| Rent: | 8,95 - 15,50 EUR per sqm/month |
|---|---|
| Service charges: | 150 CZK per sqm/month |
| Parking: | 90 EUR per place/month |
| Deposit: | 3 monthly rents |
| Minimum rental period: | 60 months |
(Prices are without VAT)
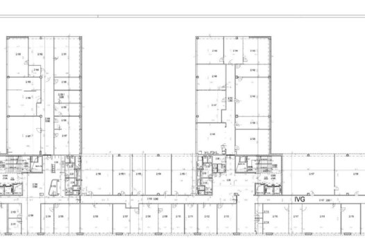
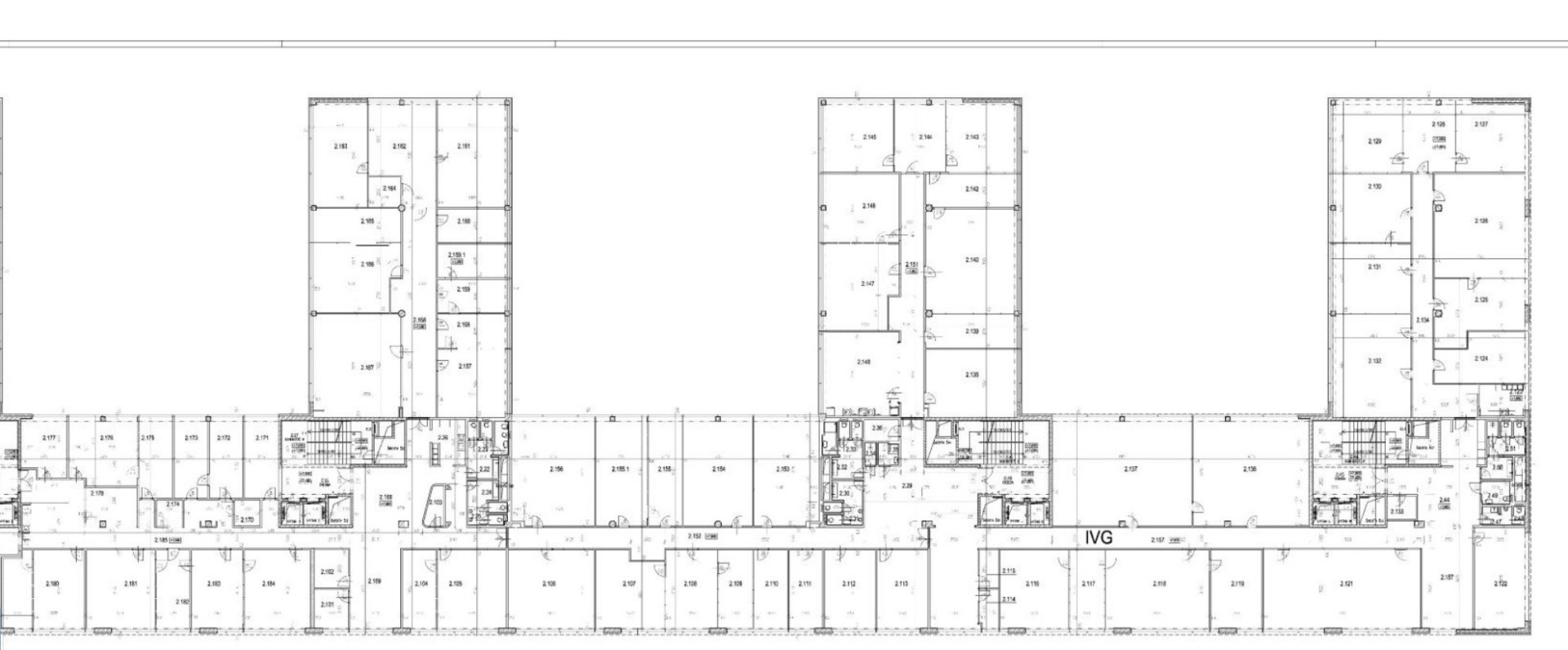
Avenir Business Park is a class A office project located in Prague 5, a 5-minute walk from the Nové Butovice B metro stop, in one of the most desirable areas in Prague. It consists of three buildings, a restaurant and offers tenants up to 519 parking spaces. The project was built at the turn of 2004/2005 and is in perfect technical condition. It is located next to the modern shopping centre Galerie Nové Butovice, which offers a wide range of shops and services including a food court, sauna world and fitness centre. The offices are designed to provide modern and flexible spaces with maximum natural light. Openable windows with internal and external blinds allow for natural ventilation. Thermal comfort throughout the year is provided by a modern and economical cooling and heating system with individual control. The premises have been designed with a minimum of structural elements so that they can be used as open space with up to 400 workstations on one floor, or as smaller individual offices. Thanks to the great variability, the space can be completely adapted to the requirements of new tenants. In the middle of the office complex there is a spacious courtyard full of greenery with "smart" benches with wifi connection, a restaurant and a café. The surrounding area is surrounded by the natural park Prokopské údolí, which offers the possibility of relaxation or cycling. Avenir offers excellent transport links both by car and public transport. The metro station B - Nové Butovice with numerous bus connections is within walking distance (5 min from the building).
Free spaces
Contact





























































































