Astrid Offices
Dělnická 1628/9 – Prague 7
| Rent: | od 20 EUR per sqm/month |
|---|---|
| Service charges: | 160 CZK per sqm/month |
| Parking: | 160 EUR per place/month |
| Deposit: | 3 monthly rents |
| Minimum rental period: | 36 months |
(Prices are without VAT)
The modern office centre with a total leasable area of over 5,500 m2 is located in Prague's Holešovice, one of the most developing parts of the capital. Astrid is a premium property with LEED certification, which is an American standard that determines the quality of the property, environmental benefits or materials used. In addition to the office space, the building also includes a modern bistro or underground garages. In addition to its attractive location, the project, which offers over 3,500 m2 of leasable office space on five floors, is also interesting for its exceptional quality. The Astrid Offices building is built to LEED Gold standard and has earned the sustainability certificate of the same name. Only projects that are efficient in water and energy management, have a high quality indoor environment, or take the environment into account in the selection of materials and construction achieve this designation. In the case of Astrid Offices, this includes a modern cooling system, a shared green roof terrace, or the use of large-scale glazing with the use of external vertical slats and horizontal louvres on the facade of the building to ensure sufficient access to daylight.
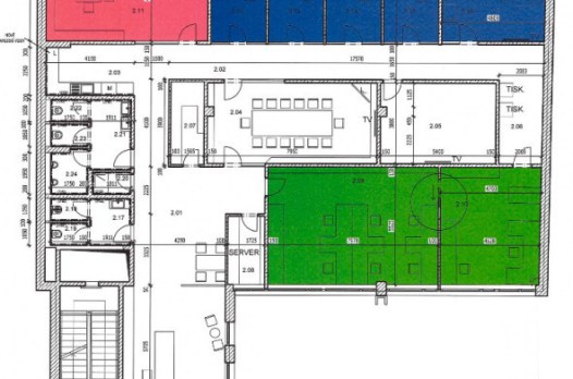
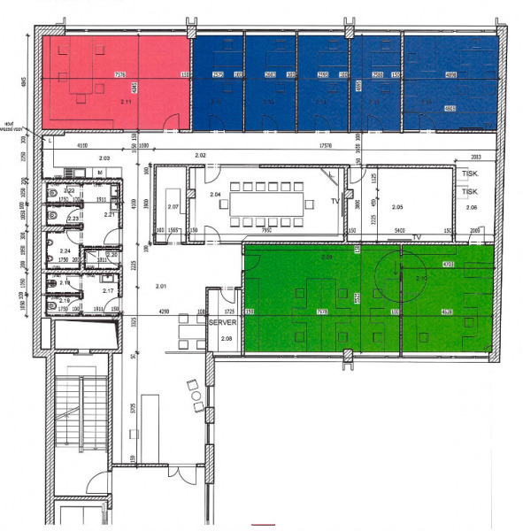
Free spaces
Contact

















